Tariff-related changes may impact pricing, and current surcharges may not yet be reflected in listed prices. Learn More

Similar Items

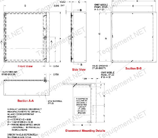
Hammond EN4DSC36328S16 N4X Eclipse Disconnect with Handle, 36 x 32 x 8, 316 SS

0 reviews | Model: Hammond EN4DSC36328S16


N4X Eclipse Disconnect w/ Handle - 36 x 32 x 8 - 316 SS

Application:

  • Designed to house the following safety disconnect equipment:
    • ABB Controls flange mounted variable depth operating mechanisms for disconnect switches and circuit breakers. Cable version for circuit breakers also available.
    • Allen Bradley 1494V variable depth flange mounted disconnect switches and circuit breaker operators NEMA 4 rated. Will not accept Allen Bradley 1494F disconnect switches, 1494D circuit breaker operators or 1494V-R1, -R2, or -W2 operating handles).
    • Cutler Hammer C361 variable depth flange mounted disconnect switches and C371 circuit breaker operators. Also Flex-Shaft™ handle mechanisms for circuit breakers. Use Cutler Hammer NEMA 4X rated operating handles to maintain NEMA 4X integrity.
    • General Electric Type STDA flange handles and variable depth operating mechanisms for disconnect switches and circuit breakers. Also SpectraFlex™ cable operators for circuit breakers.
    • Siemens I-T-E Max-Flex flange mounted variable depth handles for disconnect switch and circuit breakers. Use handle for NEMA 4 rating.
    • Square D Class 9422 disconnect switches with flange mounted variable depth operating mechanisms or cable mechanisms and Class 9422 flange mounted variable depth operating mechanism or cable mechanisms for circuit breakers. SN4SS enclosures will not accept Square D Class 9422 bracket-mounted disconnect devices, 9422TG1 or TG2 devices.


Accessories:

  • Additional inner panels
  • Air Conditioners
  • Blowers
  • Breather Kits
  • Door Stop Kit
  • Filter fans
  • Heater
  • Thermostats
  • Window kits
View Product Details

List Price: $3,537.33

In Stock:
  • View Payment Options
Product Expert

Have a question? Ask an expert.


Recommended for you

Accessories


FLIR - E6xt
R&S - T&M Promo

X