Allen Bradley Bulletin 1494F flange mounted disconnect switch: - Disconnect switch
- Fuse block adaptor (if required)
- Line and load connectors (if required)
- Door hardware
- Enclosures with an "A" dimension under 40" require two point door latching hardware, order: one Allen Bradley 1494F-L1.
- Enclosures with an "A" dimension of 40" or more require a 3 point door latching mechanism, order: one Allen Bradley 1494F-L2 and one 1494F-L3.
- Exception: Order Allen Bradley 1494F-L4 door hardware for 1447A K122 and 1447A L122.
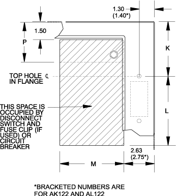
Space Occupied by Disconnect Note:
"K" = 3.84 when "C" = 8.00 "K" = 6.75 when "C" = 10.00 "K" = 9.50 when "C" = 12.00 (except enclosures for 200A switches) "K" = 9.50 when "C" = 16.00 "K" = 10.50 when "C" = 12.00 (for enclosures with 200A switches) "P" = Wiring Space
Disconnects will occupy space on panel shown by dimensions "K", "L" and "M". Wiring space "P" is available when disconnect is installed in the enclosure. *The disconnect information and space occupied tables based on data supplied by disconnect manufacturer’s bulletins. Hammond Manufacturing is not responsible for dimensional accuracy. |