Similar Items

Hammond 2DCK12 DIN Rails

0 reviews | UPC: 623980421995 | Model: Hammond 2DCK12


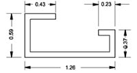
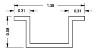
DIN Rail (set of 3) - 12 in. - Plated Steel

  • Field installable
  • Includes a set of 3 plated rails
  • DIN rail mounting kit required for installation
  • Rails have a 0.28 x 1.25 oblong slot on each end
  • Zinc plated
View Product Details

List Price: $138.83

Your Price: $86.87

Sign-in for GSA Pricing!

In Stock:
  • View Payment Options
Product Expert

Have a question? Ask an expert.


Recommended for you


FLIR - E6xt
R&S - T&M Promo
  • Add to cart

X