B-Series Switches - Pressure, Differential Pressure & Hydraulic
Ashcroft ® switches and controls for industrial and process applications. We begin with rock-solid designs, matching the most appropriate technology with the safety and reliability requirements of the applications. The materials of construction are specified to Ashcroft’s exacting standards, and product is built to last in the toughest applications. Our modern, responsive manufacturing facility is supported by an extensive network of stocking distributors and factory sales offices located in virtually every part of the world. Special application assistance is always just a telephone call away.
The Ashcroft B-Series switch line is designed to satisfy most switch requirements. Materials of construction have been selected for long life. A wide variety of precision switch elements are available to meet every application requirement, including hermetically sealed contacts for added reliability and safety. The actuators we use have been proven in more than 20 years of service in the world’s plants and mills. Special designs are available for fire safety, NACE, limit control and other more stringent requirements. Simplicity and ease of use are stressed to improve reliability of the installation. Applications include: p
Applications include: pumps, compressors, washers, filters, degreasers, evaporators, recovery systems, food processing, ground support equipment, reverse osmosis systems, heat exchangers, hydraulic systems, lubrication systems, marine equipment, textile machinery, heating and air conditioning equipment.
B-Series pressure, differential pressure and vacuum switches use two different actuators depending on setpoint requirements. For setpoints between 2 and 3000 psi, the simple, rugged diaphragm sealed piston actuator is used. This design features high reliability and choice of actuator seal materials for virtually every application. An optional welded design is also available for setpoints up to 1000 psi for maximum reliability. This design is available in 316 SS or Monel. Differential pressure models use a unique, dual diaphragm-sealed piston design that features very high static operating pressures and small size.
For setpoints between 4.5 and 150 inches of H2O, a large diaphragm is used for increased sensitivity in both pressure and differential pressure designs with good choice of materials of construction.
All standard models feature ±1 percent of range setpoint repeatability and a minimum of 400 percent of range proof pressures.
These standard designs perform well in applications where shock and vibration could be a problem and may be used in conjunction with Ashcroft diaphragm seals in extreme services such as slurries or abrasive process fluids.
B-Series NEMA 4 Pressure Switch
The Ashcroft® B4 pressure switch is designed for use in virtually all industrial and OEM applications. Providing reliability and long-cycle life, it is ideal for satisfying requirements for pressure control, shutdown or alarm operations. Special designs are available to meet NACE and Fire-safe applications.
B-Series NEMA 7 Pressure Switch
The Ashcroft® B7 pressure switch is designed for use in virtually all industrial and OEM applications. This model provides accuracy, reliability and long-cycle life, while the rugged, explosion-proof housing provides superior protection. Ideal for satisfying requirements for pressure control, safety shutdown or alarm operations in hazardous applications.
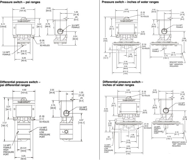
Dimensions – 400 Series
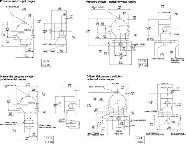
Dimensions – 700 Series
Applications:
Process Market:
- Offshore Oil Rigs
- Chemical and Petrochemical Plants
- Pulp and Paper Mills
- Power Plants
- Steel Mills
- Water and Sewage Treatment Facilities
Industrial Market:
- Pumps, Compressors and Turbines
- Boilers and Burners
- Degreasers and Evaporators
- Recovery Systems
- Reverse Osmosis Systems and Filters
- Food Processing
- Ground Support Equipment
- Hydraulic and Lubrication Systems
- Heating and Air Conditioning
- Marine Equipment
- Specialized OEM Equipment